Cette résidence en cours de construction est située à Triel-sur-Seine, un commune de 12,000 habitants située en bordure de Seine, à une trentaine de kilomètres de Paris. Début des travaux : octobre 2022 Fin prévisionnelle des travaux : août 2023
LES ATOUTS DE LA VILLE
Triel-sur-Seine se distingue par son cadre de vie agréable et paisible, propice à la détente et aux activités de plein air. La ville est traversée par la Seine, ce qui lui confère un charme tout particulier. De plus, elle dispose de plusieurs espaces verts et parcs, tels que le parc aux Charrettes et la forêt de l’Hautil, offrant aux habitants un cadre naturel pour se ressourcer.
La ville de Triel-sur-Seine dispose d’un patrimoine historique et culturel diversifié, témoignage de son passé riche et passionnant. Parmi les monuments notables, on peut citer l’église Saint-Martin, datant du XIIe siècle, et le château de Triel, construit au XVIIe siècle. Les habitants ont également accès à un réseau d’équipements culturels de qualité, avec une médiathèque, un cinéma et plusieurs salles de spectacle.
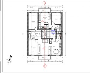
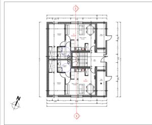
LE PROJET IMMOBILIER
Mise à jour Décembre 2023
Le bien immobilier est bientôt prêt à être livré. Une fois le gros oeuvre et le second oeuvre terminés, la phase des finitions permet de donner vie à l’habitation en harmonie avec la personnalité de l’acquéreur. Voici quelques photos qui vous permettront de juger de la qualité des finitions.